ВИЗАТОР
Японские автомобильные аукционы с акцентом на Nissan NV150 AD VY12
Главная
Новости
FAQ
Аукционы
Руководства по ремонту
Nissan Wingroad Y12: полное руководство по ремонту и обслуживанию на русском языке
Поиск
Вы здесь:
Главная
Руководства по ремонту
Nissan Wingroad Y12: полное руководство по ремонту и обслуживанию на русском языке
Двигатель
Система управления двигателем
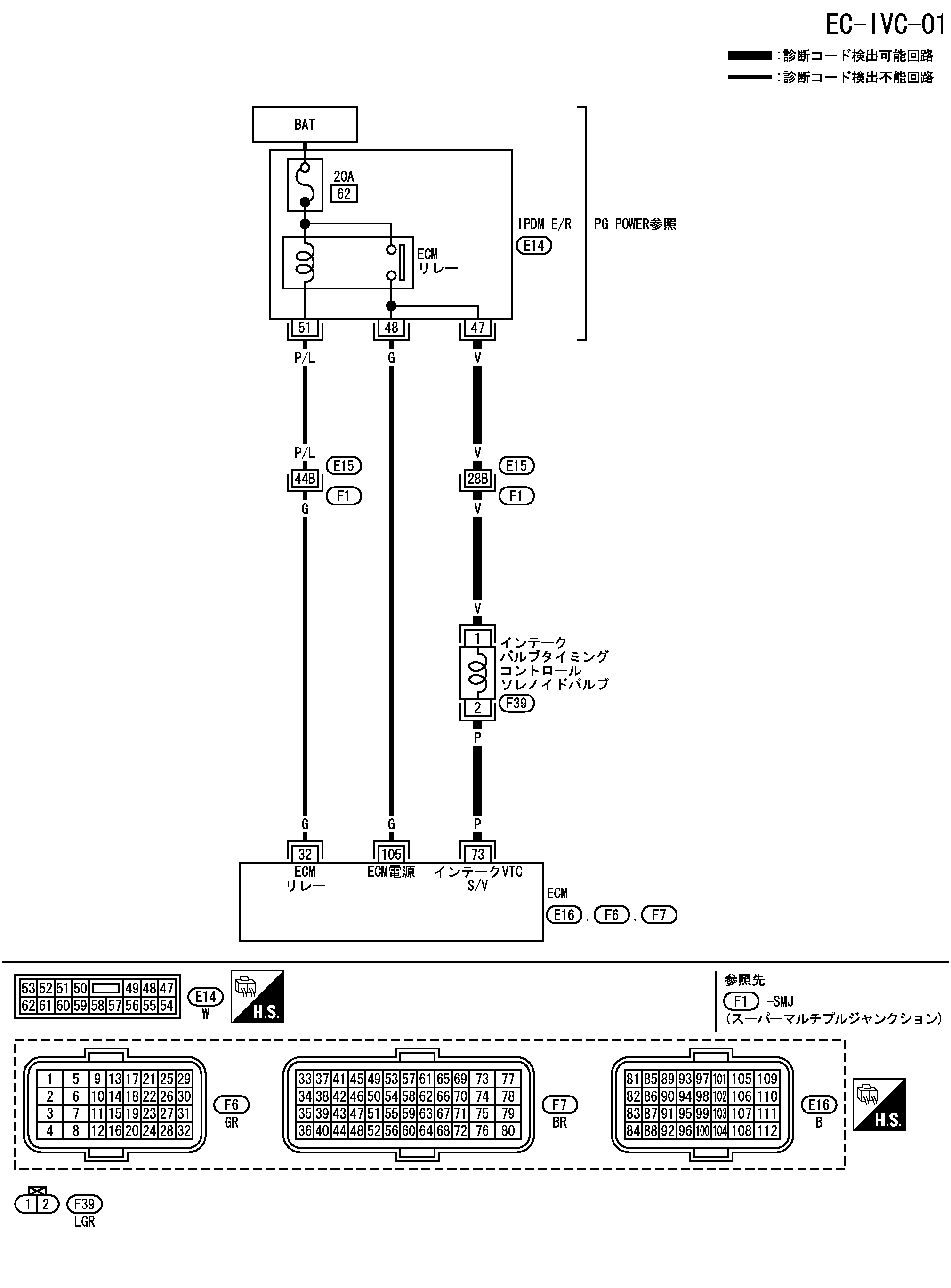
Схема подключения - ivc - dtc p0075 Электромагнитный клапан регулировки фаз газораспределения впускных клапанов
Схема подключения - ivc - dtc p0075 Электромагнитный клапан регулировки фаз газораспределения впускных клапанов
配線図 - IVC -
📄
Открыть схему TBWB1503J.PDF
Предыдущий: Процедура проведения самодиагностики dtc p0075 Электромагнитный клапан регулировки фаз газораспределения впускных клапанов
Назад
Следующий: Процедура диагностики неисправностей dtc p0075 Электромагнитный клапан регулировки фаз газораспределения впускных клапанов
Вперед
Необходимо поставить все оценки
'Поставьте галочку "Я не робот"'
Оцените статью
Отлично
Хорошо
Нормально
Плохо
Ужасно
Ваше имя *
Ваш E-mail *
Текст комментария *
Добавить комментарий
Закрыть